Livraison  — 2021
Aménagements de bureaux
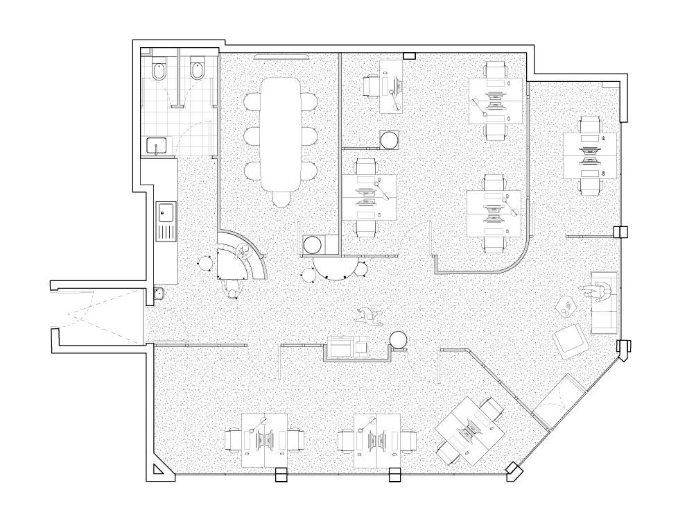
Levallois Perret - Île-de-France (92)

Rénovation intérieure complète d’un local de bureaux de 130m²

Maître d'ouvrage : Privé
Architecte : Justine Girard
en collaboration avec Alexandre Noceto




































Mark
10 RUE PRADIER, 75019 PARIS.
Mark